누리숲

제주에서 가장 낙조가 아름다운 곳이 바로                                                        이 과오름 앞에 위치한 곽금8경 올레길이라고 합니다.

우리는 그 낙조의 노을이 들어오는 이 곳에 예쁜 길과 만나는 마을 하나         만들기로 했습니다. 이 땅을 사랑하는 사람들이 이야기하면서  만들고              사람들이 잘 살 수 있는 새로운 숲과 집을 만들기로 한 것입니다.                    우리가 만들고 사람들에게 주고자 하는 숲 그리고 마을,                                  누리숲의 첫 모습이 이 제주 과오름에 반달처럼 떠 오를 것입니다.

 

인테리어

누리숲의 인테리어는 제주의 자연을 반영한 세련된 디자인과 편안한 분위기로 고객님을 맞이합니다. 각 공간은 현대적 감각과 전통적 소재가 조화롭게 어우러져, 독특한 휴식을 제공합니다. 우리의 세심한 손길이 닿은 곳곳에서, 제주도의 평화로움을 만끽하실 수 있습니다.

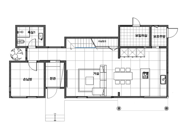
첫 발걸음을 뗀 곳, 누리숲의 매력이 시작되는 공간. 넓은 거실과 편안한 침실이 어우러져, 제주의 자연을 담은 휴식을 약속합니다.

  • 층수 101동 F1
  • 침실 1
  • 거실 1
  • 온돌방 1
  • 욕실 2
  • 주방 / 보조주방 1
  • 팬트리 1
  • 드레스룸 1

제주의 하늘을 가까이에서, 누리숲의 상층에 자리한 공간입니다. 여유로운 침실과 아늑한 거실이 전망 좋은 테라스로 이어져, 독특한 휴가를 선사합니다.

  • 층수 101동 2F
  • 침대방 1
  • 서재 1
  • 욕실 1
  • 거실 1
  • 팬트리 1
  • 테라스 2

제주의 자연이 숨 쉬는 곳, 넉넉한 공간에 세심한 디자인이 조화를 이룹니다. 누리숲의 품격을 담은 이곳에서 평화롭고 여유로운 일상을 즐기세요.

  • 층수 102동 2F
  • 거실 1
  • 주방 / 보조주방 1
  • 욕실 1
  • 팬트리 1

제주의 하늘을 바라보는 창가에서, 여유로운 삶의 질을 높여줄 공간. 누리숲의 전망 좋은 둥지에서 매일을 특별하게 시작하세요.

  • 층수 102동 2F
  • 침대방 1
  • 온돌방 1
  • 욕실 2
  • 거실 1
  • 드레스룸 1
  • 테라스 2
  • 다락 1

당신만의 피난처, 제주 누리숲에서. 이곳은 여유로운 거실과 편안한 침실이 조화를 이룬 공간으로, 제주의 평온함을 완벽하게 누릴 수 있습니다.

당신만의 피난처, 제주 누리숲에서. 이곳은 여유로운 거실과 편안한 침실이 조화를 이룬 공간으로, 제주의 평온함을 완벽하게 누릴 수 있습니다.

  • 층수 103동 2F
  • 침실 1
  • 욕실 2
  • 가족실 1
  • 베란다 2

찾아오시는길

우리는 이 과오름 올레길을 만들던 사람들의 마음과 가장 아름답게      찾아드는 낙조의 모습을 담아 ‘누리숲 제주 과오름에’ 숙련된 기술과    풍부한 경험을 가진 전문가들과 최고의 파트너들이 새로운 ‘공간’을      만들기 위해 많이 모였습니다

누리숲의 야외주방에서 자연의 정취를 느끼며 요리의 즐거움을 만끽하세요. 이 공간은 햇볕이 잘 들고 싱그러운 바람이 솔솔 불어와 맛있는 식사를 더욱 특별하게 해줍니다. 여기서 신선한 공기를 마시며 가족과 친구들과의 소중한 시간을 만들어보세요.

누리숲의 야외 스파에서는 제주의 아름다운 해변을 배경으로 휴식의 시간을 가져보세요. 부드럽게 감싸는 물의 온기와 함께, 자연이 주는 치유의 순간을 경험할 수 있습니다. 고요한 바람 속에서 펼쳐지는 황홀한 일몰과 함께하는 스파는 당신의 몸과 마음에 완벽한 평온을 선사할 것입니다.

누리숲의 야외수영장에서 바다를 바라보며 평화로운 휴식을 취하세요. 아늑한 이 공간은 일상의 번잡함에서 벗어나 자연의 속삭임을 들으며 몸과 마음을 달래는 완벽한 장소입니다. 해질 무렵 수영장에 몸을 담그고, 황홀한 일몰을 감상하며 하루를 마무리하는 것은 누리숲에서만 누릴 수 있는 특권입니다.

Background

야외주방

휴식공간

수영장 / 샤워실

예약안내

당신의 완벽한 휴식을 위해 누리숲은 다양한 예약 옵션을 제공합니다. 우리의 예약 과정은 간편하고 명확하여, 편안한 계획을 세울 수 있도록 도와드립니다. 여기에서는 사용 가능한 날짜, 특별 패키지, 그리고 투숙에 관한 모든 정보를 찾아볼 수 있습니다. 꿈꾸던 휴가를 현실로 만들기 위한 첫걸음을 누리숲과 함께 시작하세요.

Phone :

010-7737-0489

Address:

제주시 애월읍 곽지리 59-2 누리숲

E-mail :

nurisup@sohyeonseo.com

누리숲

더 알아보기

Latest Posts

과오름

우리는 이 과오름 올레길을 만들던 사람들의 마음과 가장 아름답게 찾아드는 낙조의 모습을 담아 '누리숲 제주 과오름에' 숙련된 기술과 풍부한 경험을…

인사글

제주에서 가장 낙조가 아름다운 곳이 바로 이 과오름 앞에 위치한 곽금8경 올레길이라고 합니다. 우리는 그 낙조의 노을이 들어오는 이 곳에…

누리숲에 오신걸 환영합니다.

누리숲에 오신 것을 환영합니다. 이것은 첫 글입니다. 바로 편집하거나 삭제한 다음 쓰기 시작하세요!

서비스

누리숲

제주 과오름에서 낙조와 함께 아름다움이 시작되는 곳

NURISUP

Where beauty begins with the sunset over Jeju’s Gwaoreum.

ADDRESS:

제주시 애월읍 곽지리 59-2 누리숲

Phone:

010-7737-0489

E-mail:

nurisup@sohyeonseo.com

CONTACT AGENT

NURISUP

CERTIFIED AGENT

ENQUIRE

© NURISUP. All rights reserved.